Ένα σύστημα τοιχοποιίας-τραβέρσας που χρησιμοποιείται για το σχεδιασμό και την κατασκευή ελαφρών τοιχοποιιών με ελαφριά πυρκαγιά σύμφωνα με την κατηγορία πυραντίστασης EI60.
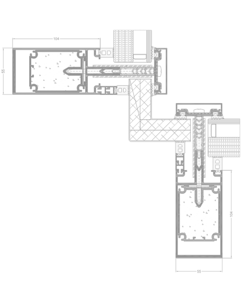
Το σύστημα βασίζεται σε ένα πλαίσιο που φέρει φορτίο που αποτελείται από κάθετα τμήματα αλουμινίου (κολώνες) και οριζόντια (τραβέρσες) με πλάτος 55 mm.
Προκειμένου να επιτευχθεί πυραντίσταση τμημάτων σε σχήμα αλουμινίου, οι κολώνες και τα κιβώτια διαθέτουν ειδικά ένθετα επιβραδυντικά φλόγας (τμήματα σε σχήμα αλουμινίου γεμισμένο με μια επιβραδυντική φλόγα ένωση).
Η εμφάνιση της φωτιάς πρόσοψης είναι ίδια με την εμφάνιση του πρόσοψη τραβέρσας-κολώνας. Ως εκ τούτου, ο σύνδεσμος της φωτιάς πρόσοψης και το πρότυπο. Η πρόσοψη μπορεί να είναι οπτικά αόρατη.
Η αποτελεσματική πυροπροστασία των συστημάτων που προσφέρει η Easy Green Hellas δεν διακυβεύεται από εμφάνιση. Οι λύσεις που προσφέρει η Easy Green Hellas παρέχουν μέγιστη ασφάλεια και ελευθερία του αρχιτεκτονικού σχεδιασμού ταυτόχρονα.
Χρησιμοποιείται μια μεγάλη γκάμα διακοσμητικών καλυμμάτων καλύμματος για την απόκτηση ενός μοντέρνου και ατομικού σχεδιασμού της πρόσοψης.
Διατίθεται μεγάλη γκάμα χρωμάτων – RAL παλέτα, δομικά χρώματα, Easy Green Hellas Wood Color Effect, δίχρωμο.

ΠΡΟΔΙΑΓΡΑΦΕΣ


ΣΧΕΔΙΑ




