FR 90 SLIDE

Οι θερμικά μονωμένες αυτόματες δομές συστημάτων θυρών πυρκαγιάς με βάση το σύστημα FR90 SLIDE μπορούν να εφαρμοστούν σε δημόσια και εμπορικά κτίρια.

Οι θερμικά μονωμένες αυτόματες δομές συστημάτων θυρών πυρκαγιάς που βασίζονται στο σύστημα FR90 SLIDE παρέχουν την κλάση πυραντίστασης EI30 σύμφωνα με το PN-EN 13501-2 του 2016.

Χαρακτηριστικά κατασκευής:
• οι θάλαμοι των προφίλ είναι γεμάτοι με αλεξίπυρα ένθετα καθολικότητα και ενοποίηση
• προφίλ με την αισθητική σύνδεση λαβύρινθου FR90 του συστήματος των φύλλων
• συμμετρικά τζάμια
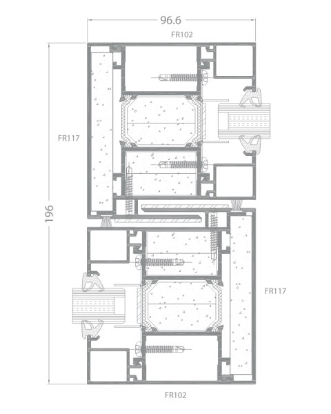
• μέγιστες διαστάσεις δομής 4900 mm x 3500 mm
• μέγιστες διαστάσεις του υαλοπίνακα φύλλων: 1193,5 x 2339 mm
• μέγιστες διαστάσεις φύλλου: 1369 x 2472 mm (σύνδεση joggle)

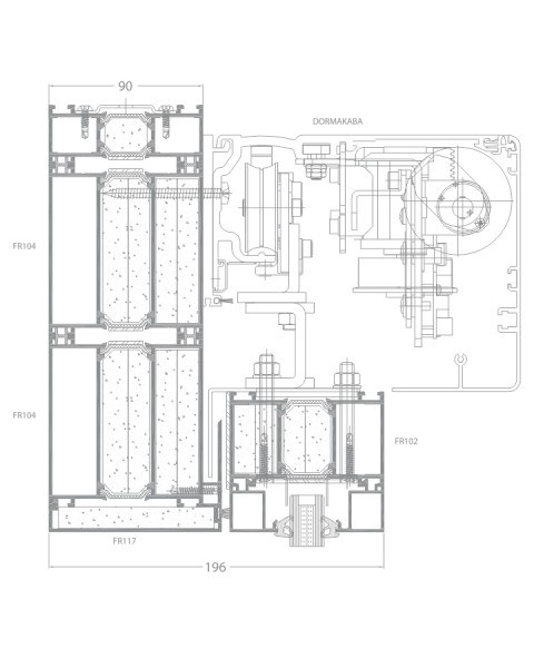
Αποκλειστική λύση αυτοματισμού: DORMA, GEZE
Δομές:
• διπλή πόρτα
• συρόμενη εξωτερικά
• πλαϊνά και κορυφαία φωτιστικά
Το σύστημα FR90 SLIDE μπορεί να εφαρμοστεί σε δημόσια και εμπορικά κτίρια.

Μεγάλη γκάμα χρωμάτων – RAL παλέτα (Qualicoat 1518), δομικά χρώματα, Easy Green Hellas Wood Color Effect (Qualideco PL-0001), ανοδικό (Qualanod 1808) και δίχρωμο.

EASYGREENHELLAS- FR 90 SLIDE

ΠΡΟΔΙΑΓΡΑΦΕΣ

EASYGREENHELLAS - FR90 SLIDE ΤΕΧΝΙΚΕΣ ΠΡΟΔΙΑΓΡΑΦΕΣ

ΣΧΕΔΙΑ

EASYGREENHELLAS-FR 90 SLIDE TECHNICAL DRAWINGS 1
EASYGREENHELLAS-FR 90 SLIDE TECHNICAL DRAWINGS 2